Introduction
Location
Floor plans
Events
Facilities
Infrastructure
Booking
Gallery
Contact
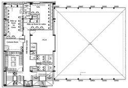
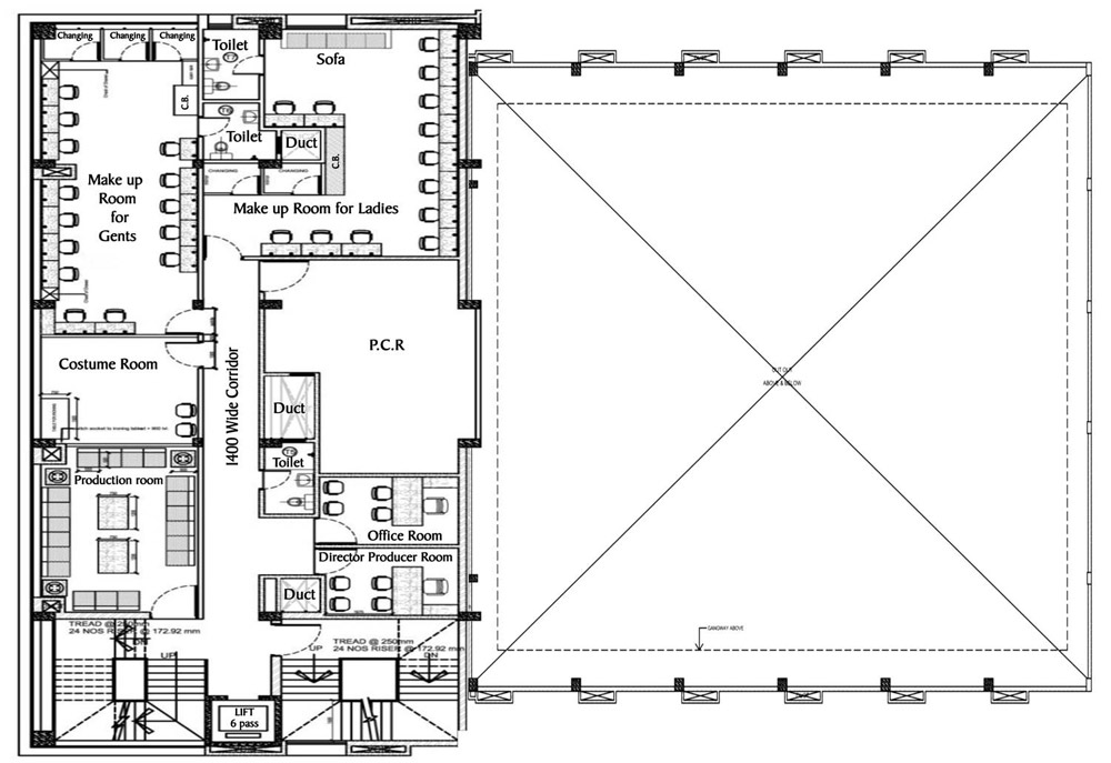
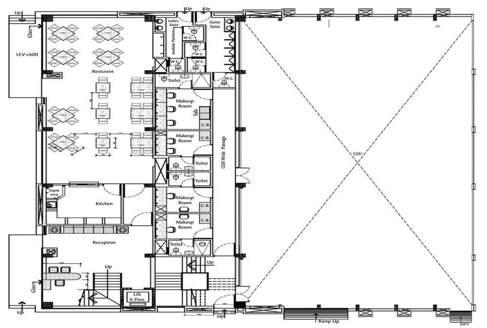
Floor Plans
Ground Floor Plan
1st Floor Plan